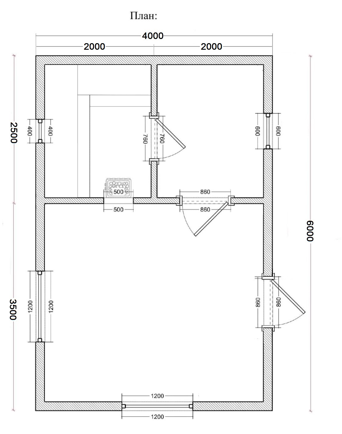
Б8 - Баня из бруса 6х4 под ключ.
| ЦЕНА, руб. | - |
| Фундамент: | - |
| Стены сруба: |
профилированный брус естественной 90х140 м.
между венцами прокладывается льноджутовое полотно,
углы сруба собираются способом "в тёплый угол",
сруб собирается на деревянные нагели.
|
| Высота 1-го этажа: | 2.2 м. (16 рядов) |
| Обвязка: | двойная из бруса:100х150 мм. |
| Лаги: | 40х150 мм. (шаг 58 см.) |
| Перегородки 1-го этажа: | профилированный брус 90х140 мм. |
| Черновой пол: | обрезная доска 20-25 мм. |
| Чистовой пол: | 27 мм., в помывочной проливные полы |
| Потолки подшиваются вагонкой: | да |
| Стропильная система: | брус 40х150 мм. (шаг 58 см.) |
| Обрешетка: | обрезная доска 20-25 мм. |
| Высота конька: | 1.2 м. |
| Потолочные балки: | 40х150 мм.(шаг 58 см.) |
|
Фронтоны, углы, поднебесники и карнизы
обиваются имитацией бруса
|
да |
| Кровля: | Металлочерепица 0.45 сталь, цвет на выбор. |
| Утепление: | 100 мм. "Роквул" |
| Паро-гидроизоляция: | "Ондутис" или аналог |
| Парное отделение: | стены и потолок в парилке обиваются осиновой вагонкой, пароизоляция - фольга, оборудованы полки в 2 яруса. |
| Входная дверь: | металл |
| Межкомнатные двери: | банные/филенчатые |
| Окна: | ПВХ 1но камерные, в парной окно осина. |
| Террасное или балконное ограждение: | при наличии, с перилами и балясинами или из обрезной доски. |
| Плинтус: | да |
| ПЕЧЬ: | ЕРМАК 12 со всеми необходимыми комплектующими. |
| Доставка и сборка: | В цену входит весь необходимый материал для строительства и сборка строения на участке Заказчика. Доставка в зоне 500 км от г. Пестово включена в стоимость бани, далее от 120 руб. с 1 км. |
| Срок строительства: | 5-10 дней |
| Дополнительные работы: | перечень работ >>> |
Б1 - Баня из бруса 6х3 под ключ. Б12 - брусовая баня 6х6 м. с террасой.
ФУНДАМЕНТ ЗА ДОПОЛНИТЕЛЬНУЮ ПЛАТУ:
Просмотров: 3197 БАНИ ИЗ БРУСА









