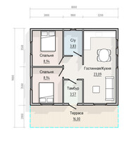
К11 - каркасный дом 8х9 м. с террасой под ключ.
| ХОЛОДНЫЙ КОНТУР | ПОД КЛЮЧ |
| Каркас с толщиной стен 150 мм. | Каркас с толщиной утеплителя 150 мм. |
| - КОМПЛЕКТАЦИЯ>> |
- КОМПЛЕКТАЦИЯ>> |
| ТЁПЛЫЙ КОНТУР | ПОД КЛЮЧ |
| Каркас с толщиной утеплителя 150 мм. | Каркас с толщиной утеплителя 200 мм. |
| - КОМПЛЕКТАЦИЯ>> |
- КОМПЛЕКТАЦИЯ>> |
К37- каркасный дом (СКАНДИ) 6.0х10.5 м. с террасой 1.5х2.0 м. под ключ. К52 - каркасный дом 6х8 с террасой под ключ.
ФУНДАМЕНТ ЗА ДОПОЛНИТЕЛЬНУЮ ПЛАТУ:
Просмотров: 129 Одноэтажные каркасные дома, КАРКАСНЫЕ ДОМА





